3 room apartement 6 guests - Résidence les Trappeurs (110)
Pics
Pics
Presentation
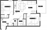
3-room apartment located in the Les Trappeurs residence, entrance D, 1,900 metres from the ski slopes and 1,100 metres from the shops, with direct access to the green areas from the balcony. Situated on the garden level (level -1) with lift access, the apartment offers 45 m² of living space, faces east, and enjoys an open view of the swimming pool.
The apartment can accommodate up to 6 guests.
...See moreThe apartment can accommodate up to 6 guests.
The essentials
- Confort :
- Type of accomodation :
- 2 chambres
- Superficie :
- 45 m²
- Capacité maximum :
- 6 personnes
- Immeuble/Résidence aux Carroz :
- Trappeurs
- Floor :
- Level -1
- Ascenseur :
- Avec Ascenseur
- Balcony/Patio :
- Balconies
- Patio
- Covered patio
Equipments, Services
- Pets :
- Pets allowed
- 1 Pet allowed on request
- 1 Pet allowed with extra charge (to pay on site) ANIMAUX ACCEPTÉS
- 1 Pet allowed on request with extra charge (to pay on site) ANIMAUX ACCEPTÉS
- Kitchen equipment :
- Dishwasher
- Laundry :
- Washing machine
- Combi washing machine + dryer
- Washing machine and dryer in the residence (charged)
- Living room equipment :
- TV
- Google TV
- TV with satellite
- Balcony/Patio :
- Balconies
- Patio
- Covered patio
- Ski or bike storage :
- Ski locker
- Ski storage
- Heated ski storage
- Ski and bike storage
Destination
674 route du Mont Favy
74300
LES CARROZ D'ARACHES
GPS coordinates
Latitude : 46.030397
Longitude : 6.631891
































